Ordinary, Except
Harvard Graduate School of Design
Cambridge, 2021
Instructor: Iman Fayyad
Collaborator: Lilly Saniel-Banrey
Within the discipline of architecture, domestic and commercial buildings tend to define the ordinary, while collective institutions call for being architecturally expectional. However, these conditions often co-mingle; exceptions encroach upon the domestic/commercial, and the ordinary invades the institutional becoming the extraordinary ordinary.
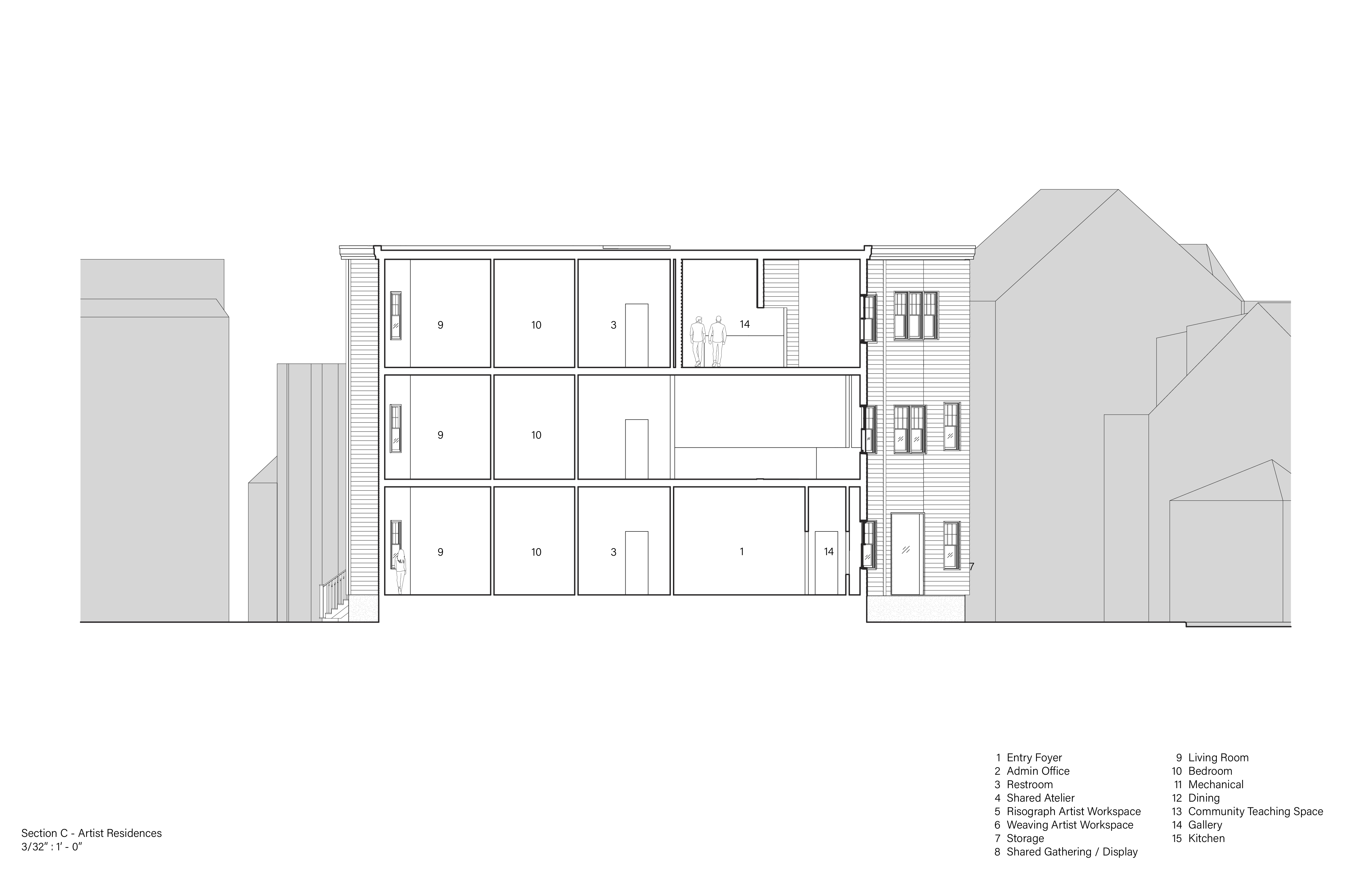
This project encompases the design of an artist residency situated within and between two existing residencies, beginning the exploration of how the ordinary can act as a catalyst for imaginging a new urban institution. It stretches threshold in search of softening the line between the institutional and the residential. In creating an artist residency in relationship to the triple decker typology and paying mind to an otherwise residential area, skewing thresholds between institutional and residential, resident and guest, public and private were inspired by the artist residency programs themselves. The residency program is offered to artists of quilting, an art of patching, and risograph printing, an art of layering, two artistries split across the digital and the manual, deep histories and recent nascence, fast and slow production times, but both working to transfer an image from one form to another through changes in scale and depth.
Harvard Graduate School of Design
Cambridge, 2021
Instructor: Iman Fayyad
Collaborator: Lilly Saniel-Banrey
Within the discipline of architecture, domestic and commercial buildings tend to define the ordinary, while collective institutions call for being architecturally expectional. However, these conditions often co-mingle; exceptions encroach upon the domestic/commercial, and the ordinary invades the institutional becoming the extraordinary ordinary.
This project encompases the design of an artist residency situated within and between two existing residencies, beginning the exploration of how the ordinary can act as a catalyst for imaginging a new urban institution. It stretches threshold in search of softening the line between the institutional and the residential. In creating an artist residency in relationship to the triple decker typology and paying mind to an otherwise residential area, skewing thresholds between institutional and residential, resident and guest, public and private were inspired by the artist residency programs themselves. The residency program is offered to artists of quilting, an art of patching, and risograph printing, an art of layering, two artistries split across the digital and the manual, deep histories and recent nascence, fast and slow production times, but both working to transfer an image from one form to another through changes in scale and depth.















